本次為紅糖廠房裝修設計方案,紅糖廠房設計面積1230平方,本次設計不僅僅是廠房設計那么簡單,而是需要結合田園景觀、紅糖工坊、村莊于一體,這一作品兼具生產、村民活動、展示等功能,銜接村莊與田園風光,構筑田園詩意疊加的舞臺,空間豐富的生機為廠區注入了新的活力。

紅糖廠房周邊全景

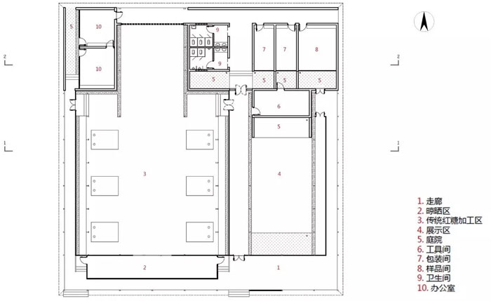
紅糖廠房設計總平面

紅糖廠房生產區二層平面

紅糖廠房體驗區二層平面

紅糖廠房工作區二層平面

紅糖廠房空間分析

紅糖廠房剖面

紅糖廠房景觀裝修設計:廠房位于區域的最里面,田園景觀環繞整個廠房,設計師之所以這樣設計,一來是滿足當地的需求,二來是滿足環保的需要,三來是滿足旅游的需要。

紅糖廠房外部進門區裝修設計:這里是連接進門處、和外部的區域,連廊的設計即可以抵擋陽光,同時又保證了空間的通透,木材都是做過防水處理的,這樣可以保證內部綠植的生長。

紅糖廠房進門連廊裝修設計:連廊的設計可以抵擋強烈的陽光,同時微風也可以保證空間的通透,之所以不做防雨措施,就是為了保證空間的通透,同時讓室內綠植快樂的成長。

紅糖廠房進門隔斷裝修設計:玻璃隔斷既可以阻隔空間,同時又能保證視覺的通透,設計師希望的就是整個廠區可以通透,不管是視覺還是感覺,一個通透的空間,讓一切變的自然。

紅糖廠房綠植裝修設計:綠色讓整個廠區煥發新的生機,在這里綠色成為常態,設計師希望綠色在廠區無處不在,打造一個綠意盎然的空間,讓整個廠區環境自然、舒適。

紅糖廠房休息區裝修設計:這里是廠區員工的聚集地,這里有涼爽的清風,在夏天吹著涼風、聊著天也是一個不錯的選擇,周圍綠色的環境,讓大家在這里享受到自然的美好。

紅糖廠房過道裝修設計:過道位于空間的中心區域,大家在走著的同時也可以欣賞到周邊的環境,這也是設計師希望看到的,設計師希望整個空間可以融為一體,相互映襯。

紅糖廠房活動區裝修設計:員工休息之余,可以在這里打打球運動一下,這里本身有公園的意味在其中,這里強調綠色、健康,員工在這里運動,也是為了擁有一個健康的體魄。

紅糖廠房休息區裝修設計:這里是一個相對封閉的空間,所以周圍村里的小孩子也可以在這里玩耍,這里的員工基本上都是村子里面的人,故此在工作之余,在這里享受天倫之樂。

紅糖廠房觀賞區裝修設計:透明玻璃既可以起到阻隔的作用,同時也起到視察的作用,客戶在這里視察廠區的情況,領導視察在這里視察廠區的狀況,一切都是為了實用及應用。

紅糖廠房車間過道裝修設計:過道位于空間的中心區域,過道主要起到運輸的作用,過道將空間一分為二,兩邊相同的工作區域,制作的紅糖通過過道運輸到別的地方,各司其職。

紅糖廠房車間制作區裝修設計:這里強調的是對制作區的擺放,設計師將制作區的尺寸擺放在方案之上,通過無數次的重組,最后打造了一個適合工作、釋放壓力的制作區域。

紅糖廠房車間工作區裝修設計:這里主要是對尺寸的把握,設計師在設計的時候,對工藝進行了很深入的了解,了解的目的就是希望換位思考,通過這樣的模擬抓到最適合的尺寸。

紅糖廠房車間細節裝修設計:這里強調的是對煙霧的處理,看似垂直向上的煙霧,實則也是設計師經過多次研究的結果,設計師考慮到煙霧對工作人員的影響,故此重點解決。

紅糖廠房車間細節裝修設計:燈光也是經過特殊處理的,由于燈光的位置必須在上,且煙霧也是必須向上排出,故此兩者之間有了不可調節的沖突,設計師需要的就是加以中和。

紅糖廠房車間細節裝修設計:經過特殊處理的燈光,皆可以阻隔煙霧對燈光的影響,同時也精準的投射到工作區域,在投射的過程中,也削減了對眼睛的損傷,做到好用無公害。

紅糖廠房車間細節裝修設計:各個制作區域井然有序、互不打擾,也是設計師在設計中的原則,設計師要做的就是,各司其職、互不打擾、互相融合,這樣的設計融入了企業的理念。
本次紅糖廠房裝修設計方案講解到此結束,本次紅糖廠房設計,不僅是廠房設計那么簡單,而是需要結合田園景觀、紅糖工坊、村莊于一體,構筑田園詩意疊加的舞臺,空間豐富的生機為廠區注入了新的活力。