本次為集團總部辦公樓裝修設計方案,辦公樓設計面積12000平方,設計師在辦公樓設計中,以科技與人文的結合為辦公室設計理念,目的就是打造人文一體的辦公樓,以此彰顯集團的形象。
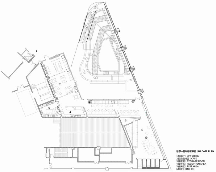
▼集團總部辦公樓負一平面圖

▼集團總部辦公樓負一平面圖

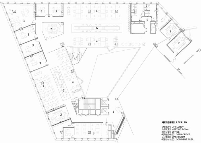
▼集團總部辦公樓三層平面圖

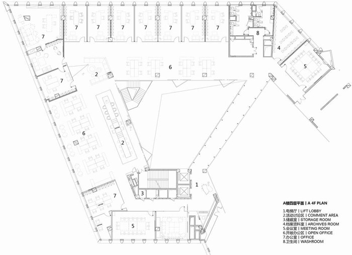
▼集團總部辦公樓四層平面圖

▼集團總部辦公樓五層平面圖

▼集團總部辦公樓大廳

▼集團總部辦公樓前臺

▼集團總部辦公樓電梯間

▼集團總部辦公樓樓梯

▼集團總部辦公樓樓梯

▼集團總部辦公樓入口

▼集團總部辦公樓過道

▼集團總部辦公樓走廊

▼集團總部辦公樓接待區

▼集團總部辦公樓辦公區

▼集團總部辦公樓辦公區

▼集團總部辦公樓吧臺

▼集團總部辦公樓辦公區

▼集團總部辦公樓會議區

▼集團總部辦公樓休息區

▼集團總部辦公樓茶水間

▼集團總部辦公樓休息區

▼集團總部辦公樓餐廳

本次集團總部辦公樓裝修設計方案講解到此結束,設計師在辦公樓設計中,以科技與人文的結合為辦公室設計理念,目的就是打造人文一體的辦公樓,以此彰顯集團的形象。