杭州贊成中心,緊鄰杭州錢塘江岸,最大化地利用了建設用地,U形的建筑體量一直伸展到基地的邊界,在北側用一個內院朝向比鄰的建筑物。
建筑師:德國 gmp 國際建筑設計
地址:中國,浙江,杭州
建筑面積:84000.0 平方米
項目年份:2017
設計:曼哈德·馮·格康與尼古勞斯·格茨以及福克瑪·希弗斯
寫字樓剖面圖

寫字樓總平面圖

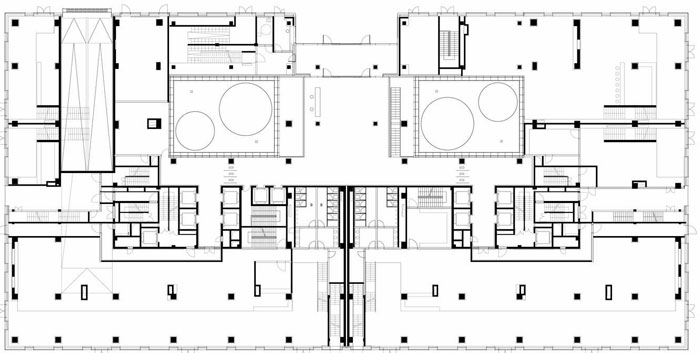
寫字樓平面圖

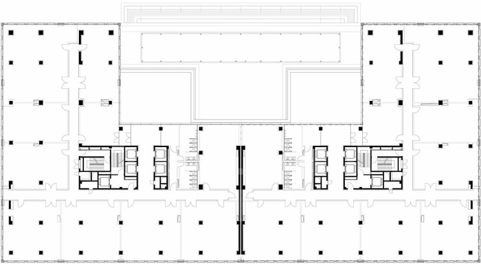
寫字樓平面圖

寫字樓外景

寫字樓外立面

寫字樓外立面

寫字樓外立面

寫字樓外立面

寫字樓前臺

寫字樓大廳

寫字樓樓梯

寫字樓辦公區

贊成中心共15層的辦公空間,通過兩個帶有電梯和樓梯的交通核串聯,U型走廊連接了每層的功能區域,辦公房間分布在走廊的兩側,面積從86平方米至230平方米不等,可以依據需求靈活分割。