本次為kt貓主題餐廳裝修設計效果圖,餐廳設計面積300平方,設計師在辦公室設計中,以童心未泯、歡樂、奇幻為餐廳設計關鍵詞,目的就是希望營造一個拋卻現實煩惱,愜意享受美食的就餐環境。
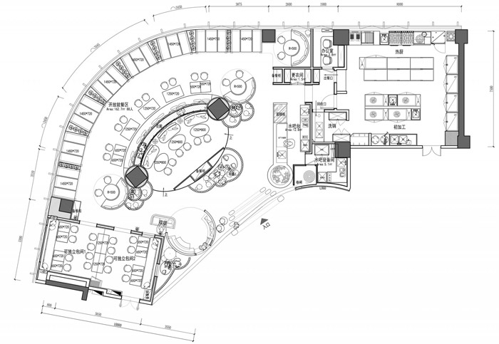
▼kt貓主題餐廳平面圖

▼kt貓主題餐廳進門區

▼kt貓主題餐廳進門區

▼kt貓主題餐廳茶水吧

▼kt貓主題餐廳展區

▼kt貓主題餐廳接待區

▼kt貓主題餐廳接待區

▼kt貓主題餐廳裝飾

▼kt貓主題餐廳餐區

▼kt貓主題餐廳餐區

本次kt貓主題餐廳裝修設計效果圖講解到此結束,設計師在主題餐廳設計中,為了增添餐廳空間的個性和趣味,設計師主張以嚴謹的細節、和童心未泯的精神,向人們展示當下藝術與空間的別樣共融。