本次為教育學校辦公室裝修設計效果圖,設計師在辦公室設計中,以簡潔、實用為辦公室設計關鍵詞,目的就是希望打造一個現代化、實用的辦公空間。
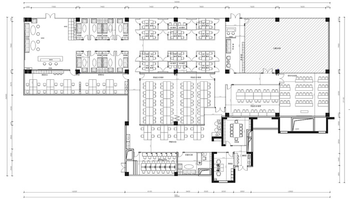
▼教育學校辦公室平面圖

▼教育學校辦公室前臺

▼教育學校辦公室接待區

▼教育學校辦公室洽談區

▼教育學校辦公室辦公區

▼教育學校辦公室辦公區

▼教育學校辦公室會議室

▼教育學校辦公室茶水間

▼教育學校辦公室娛樂室

▼教育學校校長辦公室

本次教育學校辦公室裝修設計效果圖講解到此結束,設計師在辦公室設計中,以簡潔、實用為辦公室設計關鍵詞,目的就是希望打造一個現代化、實用的辦公空間。