本次為智能公司辦公室裝修設計效果圖,辦公室設計面積500平方,設計師在辦公室設計中,以創(chuàng)意、科技、綠色為辦公室關鍵詞,目的就是希望打造一個高效率、綠色、簡潔的辦公空間。
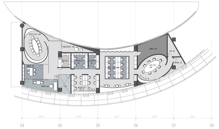
▼智能公司平面圖

▼智能公司前臺

▼智能公司展示區(qū)

▼智能公司展示區(qū)

▼智能公司過道

▼智能公司辦公區(qū)

▼智能公司辦公區(qū)

▼智能公司辦公區(qū)

▼智能公司會議室

▼經(jīng)理辦公室

▼總經(jīng)理辦公室入口

▼總經(jīng)理辦公室

▼總經(jīng)理辦公室

本次智能公司辦公室裝修設計效果圖講解到此結(jié)束,設計師在辦公室設計中,以創(chuàng)意、科技、綠色為辦公室關鍵詞,目的就是希望打造一個高效率、綠色、簡潔的辦公空間。
裝修風格 | 裝修攻略 | 深化設計 | 關于嵐禾 | 免責聲明 | 嵐禾保障 | 工裝網(wǎng) | 中式辦公室裝修 | 廠房辦公室裝修 | 辦公室裝修效果圖 | 金融辦公室裝修 | 教育培訓機構(gòu)裝修 | 科技辦公室裝修 | 公司辦公室裝修 | 辦公室裝修設計 | 民宿設計 | 聯(lián)系嵐禾
地址:杭州市西湖區(qū) 中國美術學院風景建筑設計研究總院(西斗門路) 20號 5B 郵編:310000 業(yè)務咨詢:0571-88091570 傳真:0571-88091570 E-mail: 1467724601@qq.com
杭州工裝裝修公司:www.r20163.cn